DREAM VALLEY
Type: Golf and Country Club
Location: sat. Ciopleni, com. Hrusova, r-nul Criuleni, Republic of Moldova
Project area: 21,2 ha
Project year: 2024
Team: Vladimir Pinzaru, Tatiana Lupascu, Irina Andronic, Veaceslav Muntean, Astapencov Victoria, Irina Corovin, Alexandr Carabulea
Status: in process
Location: sat. Ciopleni, com. Hrusova, r-nul Criuleni, Republic of Moldova
Project area: 21,2 ha
Project year: 2024
Team: Vladimir Pinzaru, Tatiana Lupascu, Irina Andronic, Veaceslav Muntean, Astapencov Victoria, Irina Corovin, Alexandr Carabulea
Status: in process
ABOUT
Dream Valley Golf & Country Club is a phased leisure development set within a natural landscape defined by gentle hills and open views. The masterplan is organized around an artificial lake, which acts as the central element both functionally and visually. Around it, the main components of the complex are arranged: a lakeside restaurant with terrace, the driving range practice area, the 9-hole golf course, an event space defined by a large tent structure, as well as outdoor relaxation areas and pedestrian paths that structure the relationship between water and landscape.
***
Dream Valley Golf & Country Club este un ansamblu de agrement dezvoltat etapizat, amplasat într-un cadru natural caracterizat de relief colinar și deschideri ample către peisaj. Planul general organizează compoziția în jurul unui lac artificial, care devine elementul central atât funcțional, cât și vizual. În jurul acestuia sunt dispuse principalele componente ale complexului: restaurantul cu terasă, zona de antrenament „driving range”, traseul de 9 găuri, spațiul de evenimente definit de un cort de mari dimensiuni, precum și zonele de relaxare și traseele pietonale care structurează relația dintre apă și peisaj.
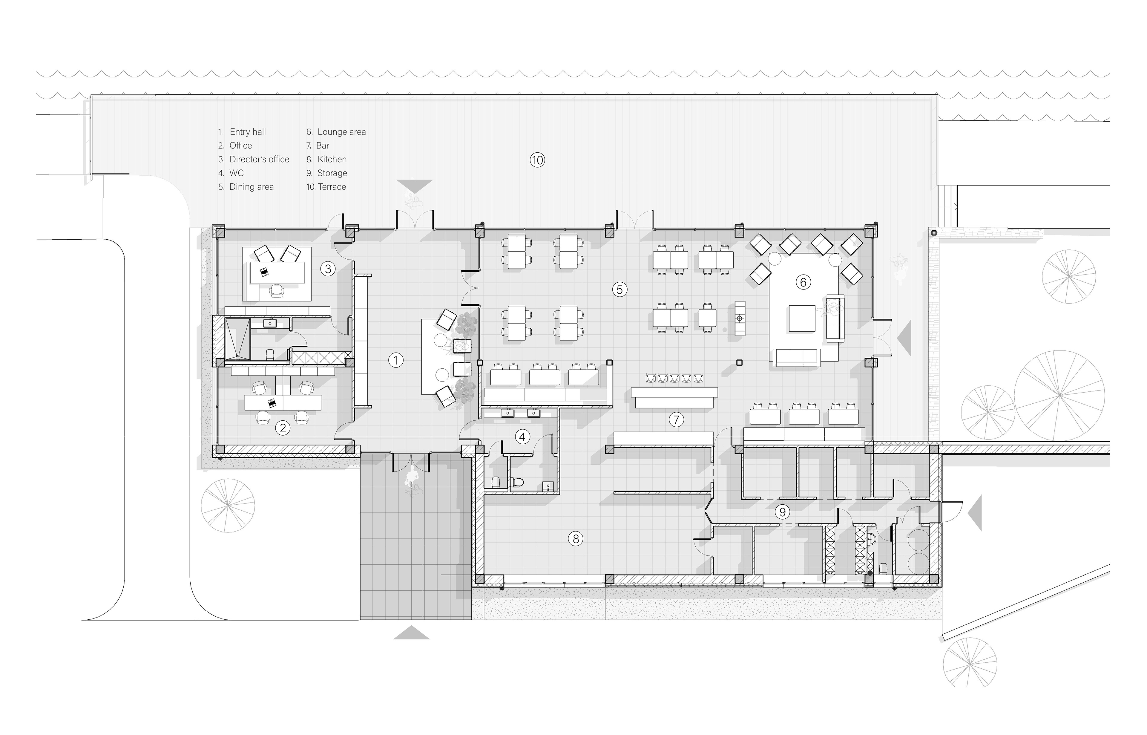
RESTAURANT
The restaurant is positioned along the edge of the artificial lake, conceived as a horizontal volume open towards the landscape, with generous glazing and an expansive terrace.
The interior includes a 54-seat dining area, complemented by a lounge and a bar, all configured within a fluid and cohesive spatial arrangement. The outdoor terrace unfolds along the water, functioning as a natural extension of the interior
The interior includes a 54-seat dining area, complemented by a lounge and a bar, all configured within a fluid and cohesive spatial arrangement. The outdoor terrace unfolds along the water, functioning as a natural extension of the interior
***
Restaurantul este amplasat pe latura lacului artificial, fiind conceput ca un volum orizontal, deschis către peisaj. cu suprafețe vitrate ample și o terasă generoasă.
Spațiul interior include o zonă de dining cu 54 de locuri, completată de un lounge și un bar, configurate într-o atmosferă fluidă și coerentă. Terasa exterioară se desfășoară de-a lungul apei, funcționând ca o extensie naturală a interiorului.
Spațiul interior include o zonă de dining cu 54 de locuri, completată de un lounge și un bar, configurate într-o atmosferă fluidă și coerentă. Terasa exterioară se desfășoară de-a lungul apei, funcționând ca o extensie naturală a interiorului.
The lake itself becomes an active element within the composition. At its center, an existing tree has been preserved and integrated into a circular accessible platform, creating a focal point and a destination in its own right. This intervention adds an additional layer of experience, transforming the lake into an active space rather than a purely contemplative one.
***
Lacul devine un element activ al compoziției: în mijlocul acestuia a fost păstrat un copac existent, în jurul căruia a fost proiectată o platformă-terasă accesibilă, creând un punct de interes și o destinație în sine în cadrul ansamblului. Această intervenție adaugă un strat suplimentar de experiență, transformând lacul într-un spațiu activ și nu doar contemplativ.
DRIVING RANGE
The driving range is designed for simultaneous use, featuring a series of 8 hitting bays oriented towards the open landscape. The layout emphasizes both functional clarity and user comfort, with each position benefiting from optimal visibility.
In close proximity, users have access to a café, complementing the sporting experience with a space for relaxation and social interaction
In close proximity, users have access to a café, complementing the sporting experience with a space for relaxation and social interaction
***
Driving range-ul este conceput pentru utilizare simultană, printr-o serie de 8 posturi de lovire orientate către peisajul deschis. Organizarea spațiului pune accent pe claritate funcțională și confort, fiecare poziție beneficiind de vizibilitate optimă.
În proximitate, utilizatorii au acces la o cafenea, care completează experiența sportivă printr-un spațiu de relaxare și socializare.
În proximitate, utilizatorii au acces la o cafenea, care completează experiența sportivă printr-un spațiu de relaxare și socializare.
GOLF COURSE
The golf course extends across approximately 21,2 hectares and is organized as a 9-hole layout. Its configuration takes advantage of the natural topography, adapting to the existing slopes and terrain.
Rather than imposing a rigid geometry, the project proposes an organic integration into the landscape, where topography and vegetation define the course. This approach creates a varied playing experience in which the natural environment becomes an active participant.
Rather than imposing a rigid geometry, the project proposes an organic integration into the landscape, where topography and vegetation define the course. This approach creates a varied playing experience in which the natural environment becomes an active participant.
***
Terenul de golf se desfășoară pe o suprafață de aproximativ 21,2 hectare și este organizat ca un traseu de 9 găuri. Configurația valorifică relieful natural, adaptându-se la pantele și curbele existente.
Proiectul evită intervențiile rigide, propunând o integrare organică în peisaj, în care topografia și vegetația definesc parcursul. Astfel, experiența de joc devine una variată, în care mediul natural participă activ.
Proiectul evită intervențiile rigide, propunând o integrare organică în peisaj, în care topografia și vegetația definesc parcursul. Astfel, experiența de joc devine una variată, în care mediul natural participă activ.
CONSTRUCTION
The development of the complex began with the creation of the artificial lake, through excavation and terrain modeling. Subsequently, the ground was prepared for the driving range area.
***
Dezvoltarea complexului a început cu realizarea lacului artificial, prin excavarea și modelarea terenului. Ulterior, au fost pregătite suprafețele pentru zona de driving range.
The first constructed phase included the driving range and the main pedestrian path paved in red brick, which serves as both an orientational and identity-defining element. Further phases continue the gradual development of the project.
***
Prima etapă construită a inclus driving range-ul și traseul pietonal realizat din pavaj de cărămidă roșie, care funcționează ca element de orientare și identitate. Etapele următoare continuă dezvoltarea ansamblului.
TEAM
Vladimir Pinzaru
Tatiana Lupascu
Irina Andronic
Veaceslav Muntean
Victoria Astapencov
Irina Corovin
Alexandr Carabulea
Let's design beautiful spaces together!