Penthouse D
Type: Private apartment
Status: in process
Location: Chișinău, Republic of Moldova
Project area: 530 sq. m
Project year: 2023
Team: Vladimir Pînzaru, Tatiana Lupașcu, Irina Andronic, Veaceslav Muntean, Alexandr Carabulea, Victoria Astapencov
Status: in process
Location: Chișinău, Republic of Moldova
Project area: 530 sq. m
Project year: 2023
Team: Vladimir Pînzaru, Tatiana Lupașcu, Irina Andronic, Veaceslav Muntean, Alexandr Carabulea, Victoria Astapencov

about
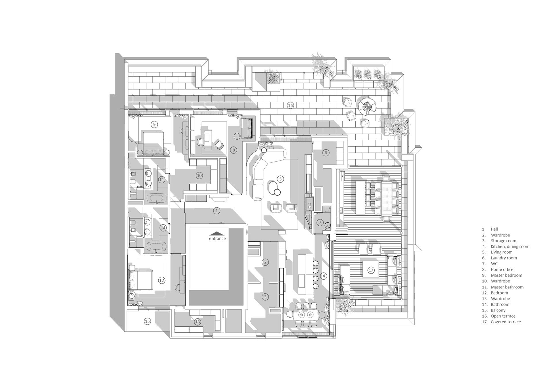
Private apartment with park view, in Chisinau with an area of 530 sq. m. The entire area of the apartment can be conditionally divided into two separate spaces: 250 square meters of common areas and 280 sq. m. for the terrace zone.
***
Apartament privat cu vedere spre parc, situat în Chișinău, cu o suprafață de 530 mp. Întreaga suprafață a apartamentului poate fi împărțită convențional în două zone distincte: 250 mp dedicați spațiilor comune și 280 mp pentru zona terasei.

DESIGN

entrance hall



kitchen & dining room




living room




home office


MASTER BEDROOM






BEDROOM




TERRACE








TEAM

Vladimir Pinzaru

Tatiana Lupascu

Irina Andronic

Veaceslav Muntean

Alexandr Carabulea

Victoria Astapencov
Let's design beautiful spaces together!